Exact matches only
Search in title
Search in content
Search in posts
Search in pages

Bloco Informática

 

PRIMEIRO PAVIMENTO

 

SALA 101 – SALA DE AULA

SALA 102 – SALA DE AULA

SALA 103 – SALA DE AULA

SALA 104 – SALA DE AULA

SALA 105 – LABORATÓRIOS DE TURISMO

SALA 106 – LABORATÓRIO DE GEOGRAFIA FÍSICA

SALA 107 – LABORATÓRIO MULTIUSO / CASA DA INOVAÇÃO

SALA 108 – COTIC (COORDENADORIA DE TECNOLOGIA DA INFORMAÇÃO E COMUNICAÇÃO) / TELECOMUNICAÇÕES

SALA 109 – SALA DE PROFESSOR / PEDAGOGIA

 

SEGUNDO PAVIMENTO

 

SALA 201 – SALA DE AULA

SALA 202 – SALA DE AULA

SALA 203 – SALA DE AULA

SALA 204 – SALA DE AULA

SALA 205 – SALA DE PROFESSOR / ECONOMIA

SALA 206 – SALA DE PROFESSOR / ECONOMIA

SALA 207 – SALA DE PROFESSOR / ECONOMIA

SALA 208 – SALA DE PROFESSOR / CIÊNCIAS SOCIAIS

SALA 209 – LABORATÓRIO DE GEOPROCESSAMENTO E TECNOLOGIAS DA EDUCAÇÃO

SALA 210 – LABORATÓRIO DE INFORMÁTICA / DTL

SALA 211 – COTIC (COORDENADORIA DE TECNOLOGIA DA INFORMAÇÃO E COMUNICAÇÃO) / REDES / MANUTENÇÃO

SALA 212 -PROTOCOLO DO CAMPUS

 

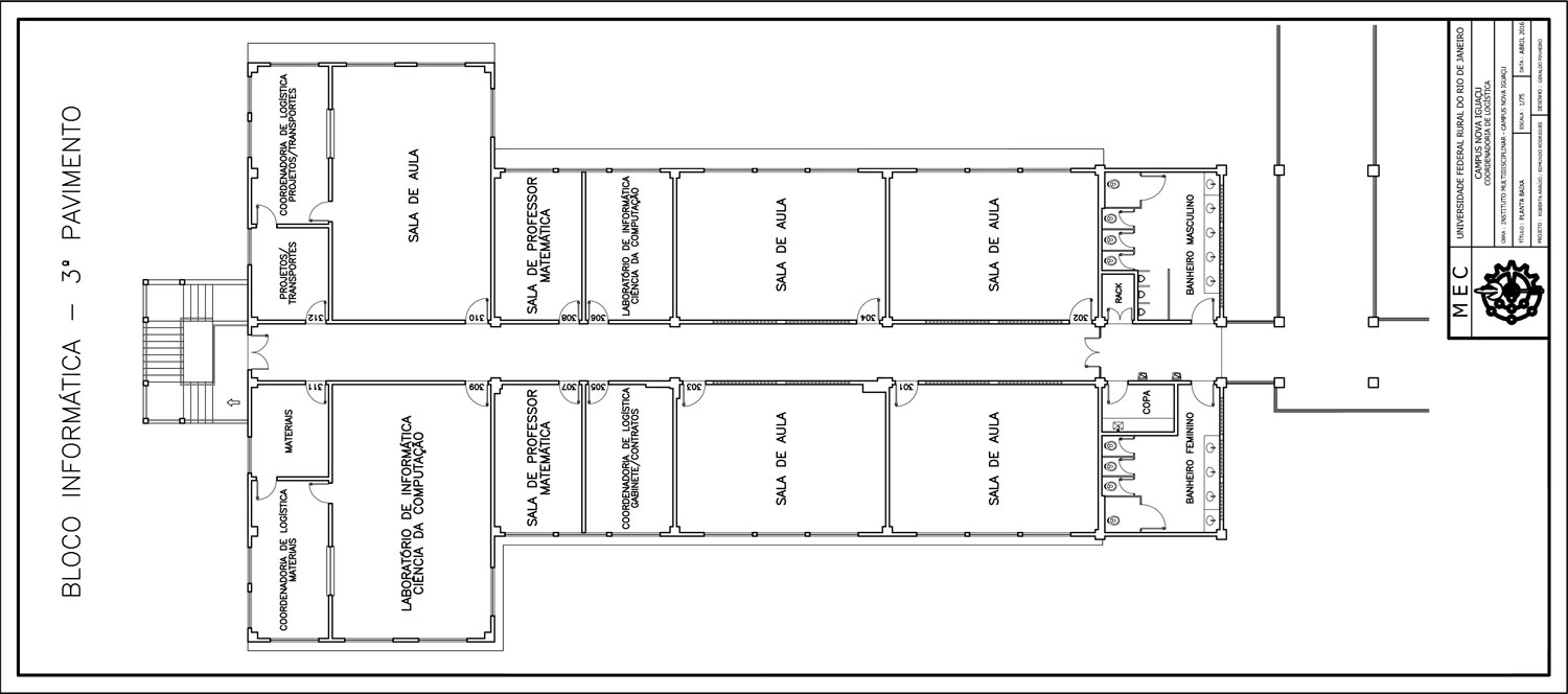
TERCEIRO PAVIMENTO

 

SALA 301 – SALA DE AULA

SALA 302 – SALA DE AULA

SALA 303 – SALA DE AULA

SALA 304 – SALA DE AULA

SALA 305 – COLOG (COORDENADORIA DE LOGÍSTICA) 

SALA 306 – LABORATÓRIO DE ATIVIDADES ACADÊMICAS / DCC

SALA 307 – SALA DE PROFESSOR / MATEMÁTICA

SALA 308 – SALA DE PROFESSOR / MATEMÁTICA

SALA 309 – LABORATÓRIO DE INFORMÁTICA / DCC

SALA 310 – SALA DE AULA

SALA 311 – COMAC (COORDENADORIA DE MATERIAIS, AQUISIÇÕES E CONTRATOS) / MATERIAIS

SALA 312 – COLOG (COORDENADORIA DE LOGÍSTICA) / PROJETOS / TRANSPORTES